Tous les projets
Public

FOL - CONCEPTION-REALISATION POUR LA RECONSTRUCTION DU CENTRE SOCIO-EDUCATIF ET CULTUREL DE LA FOL


Ville : NOUMEA
Section : CENTRE VILLE
Surface : 1ha 26a 81ca
État : Concours

Analyse du site

Le site d’accueil du projet s’inscrit dans un contexte urbain particulièrement riche avec une vue dominante sur le Centre-Ville de NOUMEA à l’ouest et la vallée du génie à l’est. Ce site exceptionnel offre un point de vue panoramique sur toute la ville. Le contexte urbain existant autour du terrain offre une densité forte composée de différents services tels que des logements, des bureaux, des établissements scolaires et bâtiments religieux. Le parti urbain développé par le projet doit proposer une approche juste et contemporaine sans dénaturer son environnement. Le traitement urbain de la parcelle va avoir un impact fort sur l’environnement proche en raison de sa position dominante. En partant de ces analyses, nous avons souhaité décomposer le projet en plusieurs éléments très identifiables, chacun à l’échelle du quartier. Il nous semble intéressant de travailler le végétal sur ce projet afin qu’il puisse contribuer à l’intégration du projet dans son environnement. En résumé, ces différentes analyses et les propositions urbaines que nous souhaitons, nous ont permis de définir des principes forts comme lignes directrices du projet.


Ces principes sont :

o    Proposer une lecture claire du projet et des différentes entités le composant.

o    Proposer une implantation ouverte favorisant l’apport de lumière et la ventilation.

o    Intégrer le végétal comme moteur du projet.

o    Donner une identité symbolique et architecturale valorisante.

Concept architectural

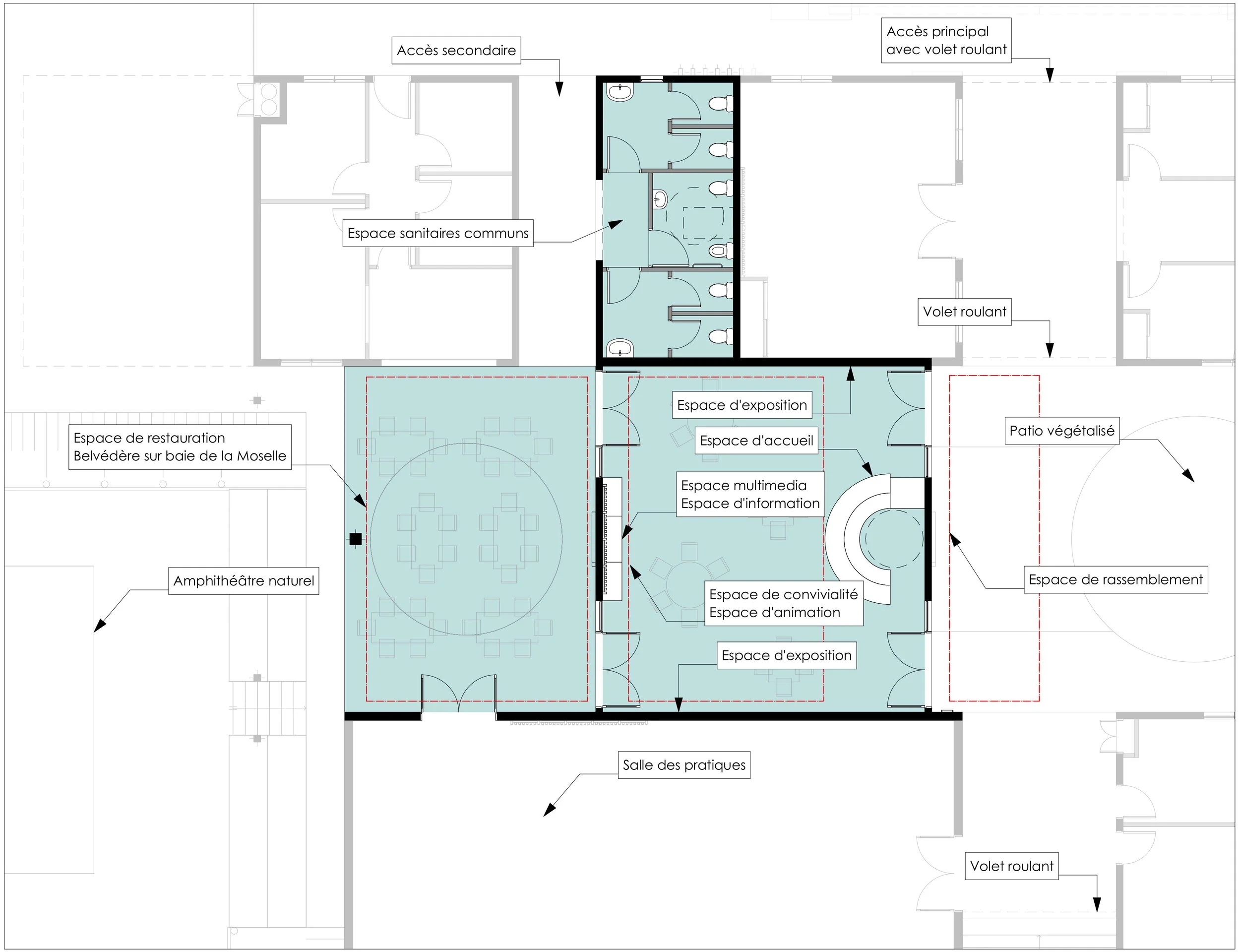
Inspiré d’une architecture tropicale et océanienne, nous avons fait le choix de transcrire dans ce projet les identités et valeurs des communautés que regroupent la Nouvelle-Calédonie. Notre proposition architecturale s’appuie sur des intérêts symboliques en les réinterprétant dans un langage architectural contemporain. Notre souhaite a été de proposer une architecture avec des espaces ouverts qui s’articule autour d’un patio intérieur végétalisé. Les différents espaces ont été conçus de manière détachée les uns des autres afin d’ouvrir au maximum le projet et permettre la création de failles offrants des vues exceptionnelles sur le relief et la Ville de Nouméa. D’un point de vue architectural, les larges débords de toitures contribuent à la protection des façades extérieurs exposées à un ensoleillement direct. Les éléments de charpentes en bois permettent de marquer les entrées du centre, les résilles inspirées des formes de la culture océanienne participent à l’accueil des visiteurs.

 L’essentiel des bâtiments sont couvert par une toiture à quatre pans, la salle des pratiques bénéfice d’une toiture terrasse afin de satisfaire aux exigences acoustiques imposées par le programme de l’opération. Cet espace bénéficie d’une sur-toiture faisant ainsi écho aux toitures des autres bâtiments. Le bâtiment est composé d’un simple rez-de-chaussée partiellement en élévation, ce choix a été fait dans une logique de limiter les travaux de terrassement, d’autre part bien que cela ne soit pas prévu ou exigé au programme, la partie inférieure du bâtiment en élévation peut être utilisée et aménagée à moyen ou long terme dans une cadre d’une éventuelle extension des locaux.

L’objectif de l’ensemble du groupement a été de proposer au maitre d’ouvrage une architecture respectueuse de son environnement tout en conservant une échelle humaine, qui facilite l’accueil de tous et puisse célébrer le caractère exceptionnel du site sur lequel est implanté le bâtiment. Les ouvrants sur l’extérieur ont été soigneusement implantés sur les façades afin d’offrir et de créer des cadres vers des vues dégagées sur le paysage lointain de Nouméa. Notre volonté de créer des espaces largement ouverts sur l’extérieur a été possible avec la mise en place de failles traversantes permettant la fluidité des déplacements autour d’un patio central végétalisé. Le cœur du bâtiment est conçu comme un hub qui permet de distribuer les différents espaces dans le respect d’une architecture tropicale et océanienne.

Une attention toute particulière a été apportée au traitement paysager des abords du projet et du site dans sa globalité. Le parking est implanté au Nord de la parcelle avec une liaison directe depuis la rue du Pasteur Marcel Ariège, regroupe 26 places visiteurs ainsi que deux places de bus et 20 places deux roues. Un parking vélo d’une superficie de 20.91m² est implantée à proximité du cheminement piéton menant à l’entrée du centre socio-éducatif et culturel. Un second parking sécurisé et mitoyen au parking visiteurs est réservé aux agents, il regroupe un total de 7 places pour véhicules légers et trois places pour les camions. L’organisation du plan de masse s’est faite en positionnant les espaces de stationnement au plus proche de la voie de desserte existante. Depuis le parking, nous avons souhaité conserver une partie de la voie qui contournait l’ancien bâtiment de la FOL. Cette voie permet de desservir l’ensemble des locaux et ainsi faciliter la manutention d’articles volumineux.

 L’entrée principale est implantée en liaison direct avec le parking destinés aux visiteurs et celui des agents. Les locaux s’articulent autour du Forum et du patio central végétalisé, l’espace extérieur du Forum ainsi que celle du snack sont ouverts sur la ville avec une vue à 180°. Nous avons d’autre part volontairement relocalisé la scène et ses gradins afin d’avoir la ville en arrière-plan.