tous les projets
promotion

LE CONDE


Ville : NOUMÉA
Section : CENTRE VILLE
Surface : 11a 72ca
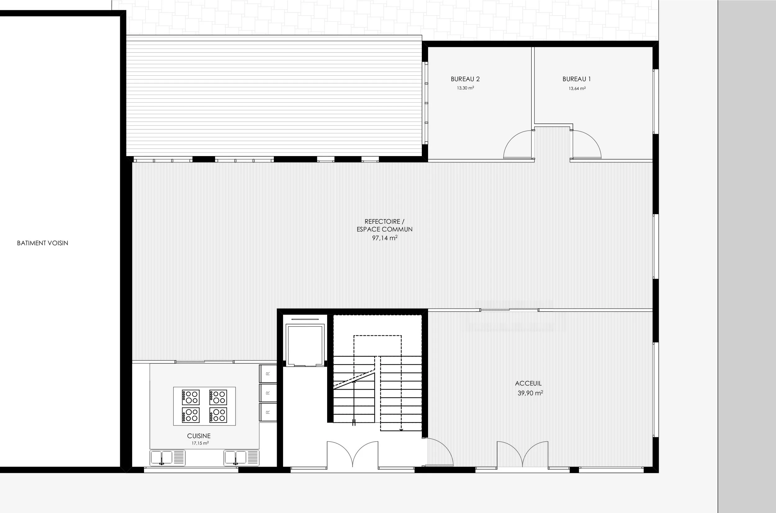
État : Faisabilité

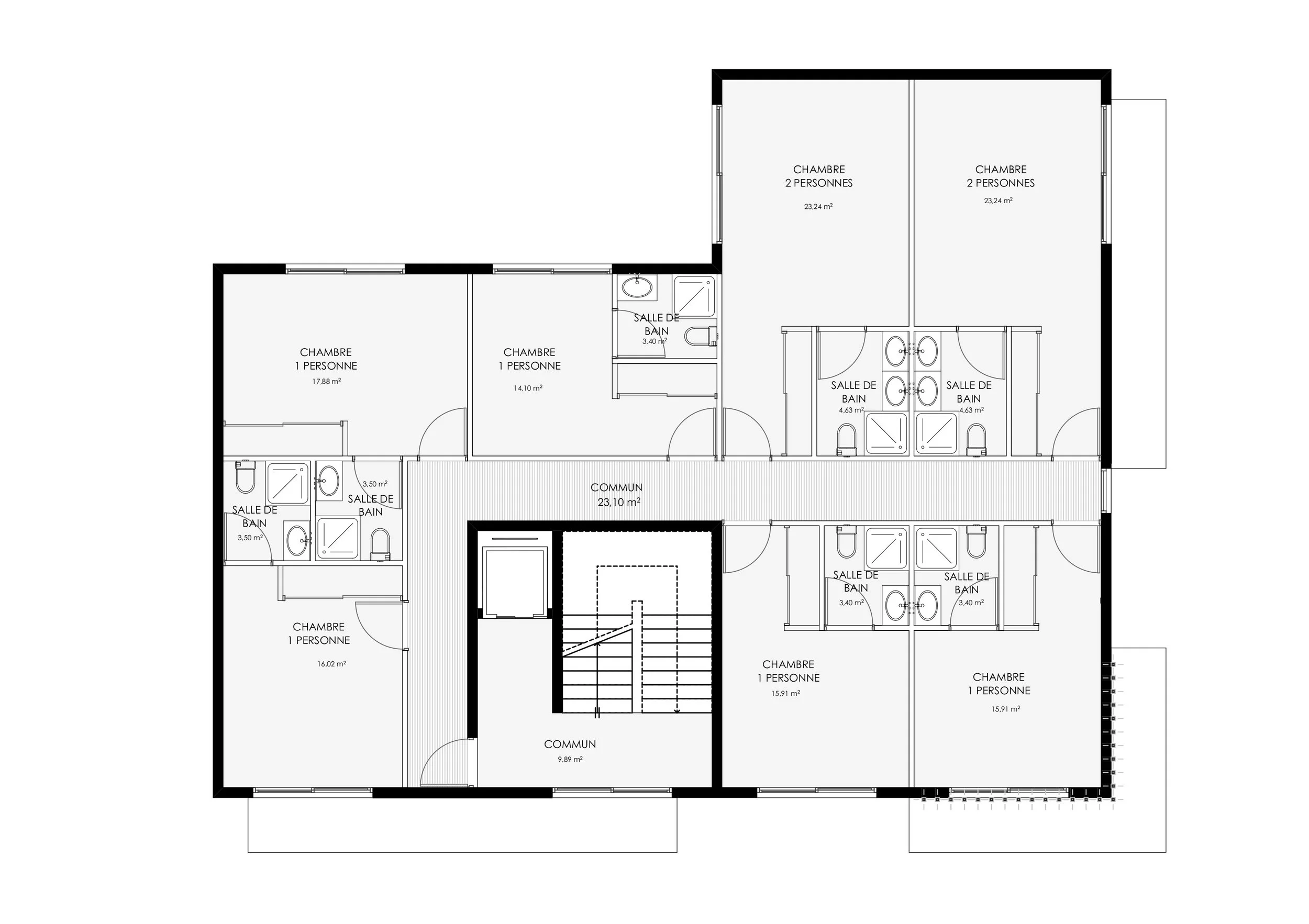
La projet Le Condé vise la transformation d’un immeuble de bureaux R+4 datant de 1972 en auberge de jeunesse. De par sa situation au cœur du centre-ville, c’est un emplacement privilégié pour tous ceux qui peuvent souhaiter séjourner à Nouméa. L’ensemble des plateaux de l’immeuble offre une superficie de 1120 m² à restructurer avec une mise aux normes de l’édifice. Le rez-de-chaussée accueille un hall, un espace réfectoire / espace commun, une cuisine et 2 bureaux pour la gestion de l’auberge. Des niveaux r+1 à R+4 les plateaux s’organisent de façon à proposer 5 chambres individuelles et 2 chambres doubles. Le traitement architectural vise à moderniser la façade du bâtiment en le rendant facilement identifiable le long du boulevard Vauban.