tous les projets
promotion

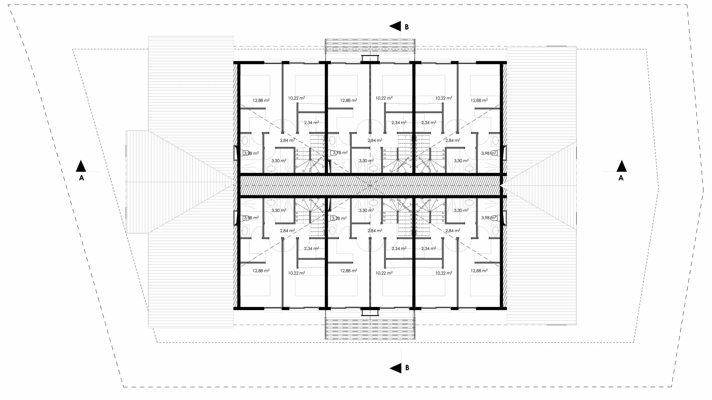
RÉSIDENCE N’DE


Ville : NOUMÉA
Section : ORPHELINAT
Surface : 11a 00ca
État : Esquisse

SHON : 1116,10 m²
SHOB : 1816,45 m²
SHAB : 944,21 m

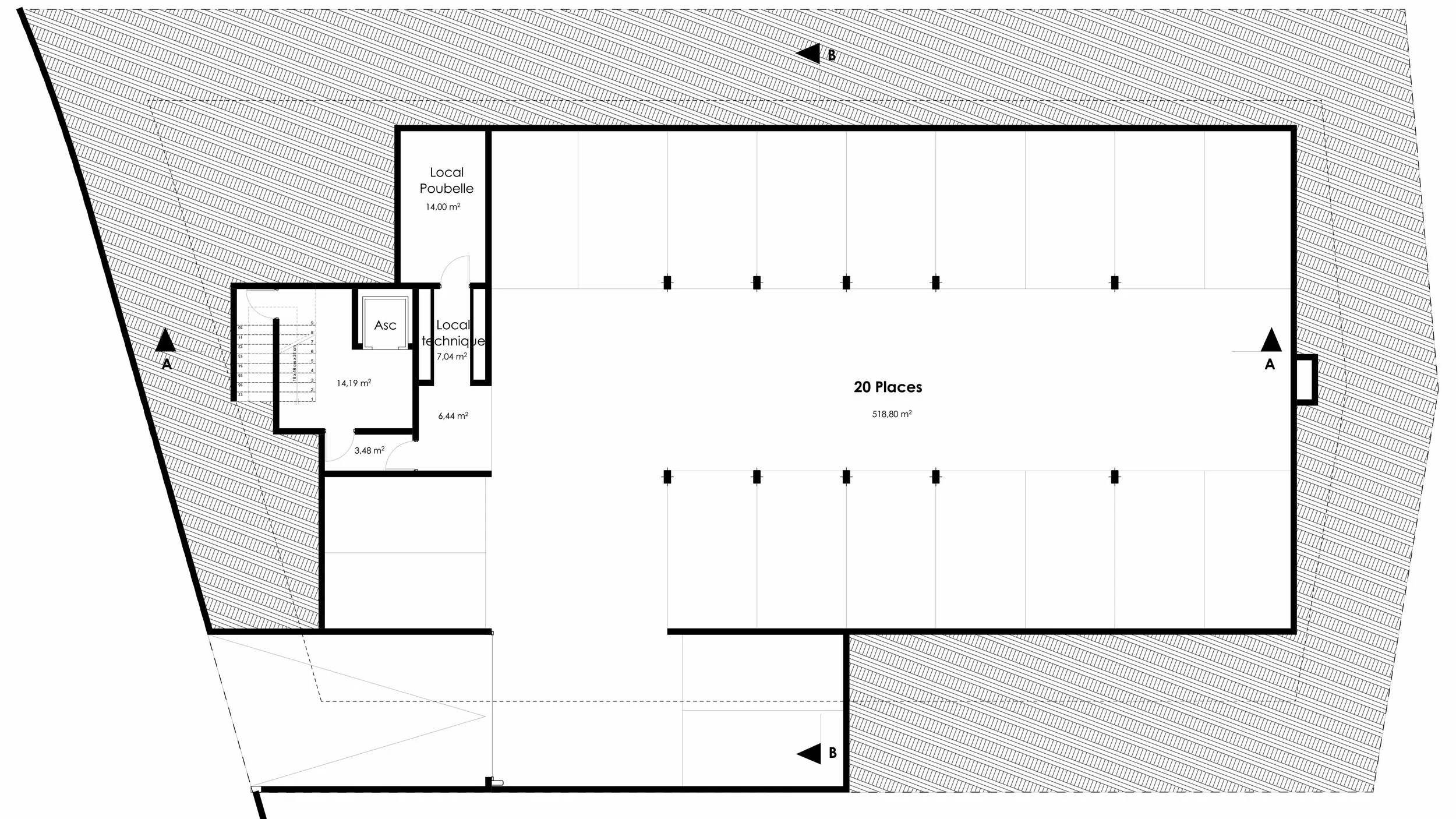
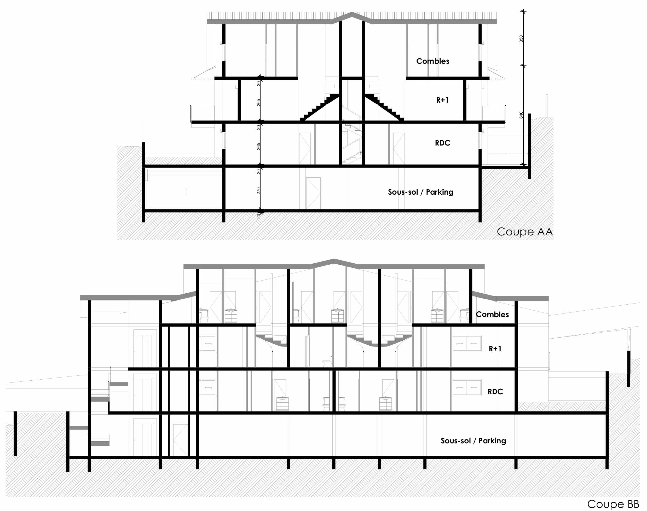
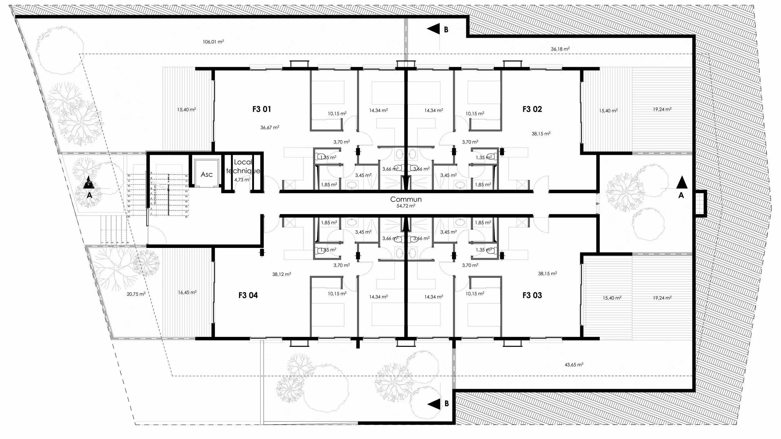
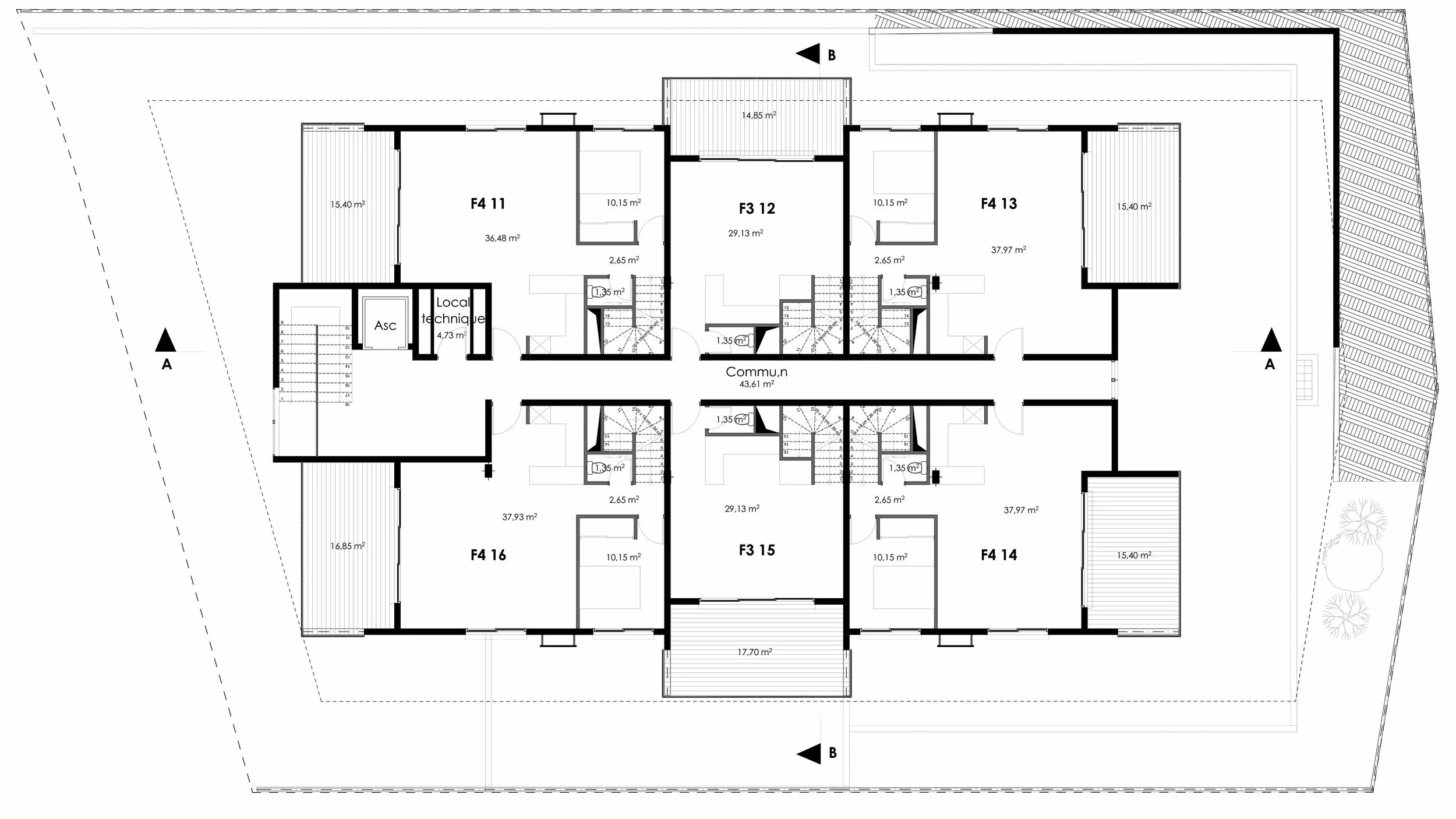
La résidence N’dé accueille 10 appartements de standing allant du F3 au F4. Le quartier de l’orphelinat est un des lieux valorisant de Nouméa et nous souhaitions ici proposer uniquement des logements de type F3/F4 afin de viser comme occupants principalement des familles ou jeunes couples avec enfants. Le traitement architectural de la résidence est marqué par une entrée forte et visible de la rue avec un traitement en parement pierre sur la façade. Cette résidence R+1 + combles compte 4 appartements en rdc avec jardin, et 6 appartements en R+1 qui profitent des combles aménagés pour accueillir des chambres et salles d’eau. Les logements comptent tous des chambres parentales équipées de salle d’eau dédiées. Un traitement particulier a été porté à l’orientation des terrasses afin de limiter au mieux les vis-à-vis entre logements et réduire les nuisances. L’entrée du parking en sous-sol vient s’inscrire dans la pente actuelle de la voirie afin de limiter la hauteur d’implantation du niveau de référence. Des toitures végétalisées sont prévues sur les surfaces de parking afin de renforcer l’intégration du projet dans son environnement végétal et créer des brise vue naturels.