tous les projets
particulier

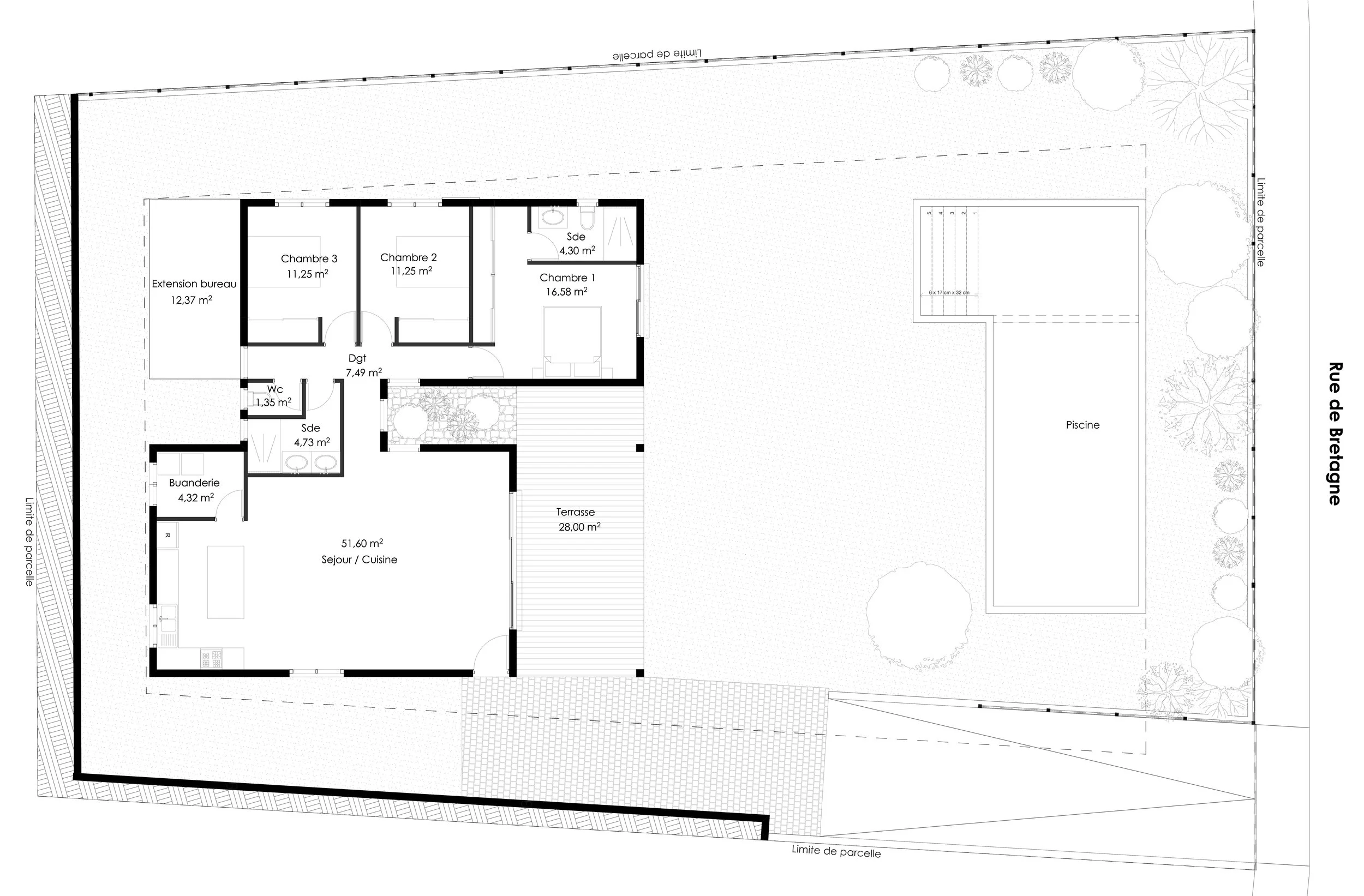
VILLA CL


Ville : DUMBÉA
Section : L’EMBOUCHURE
Surface : 7a 74ca
État : Esquisse

SHAB : 112,87 m²

Ce projet se situe sur la commune de Dumbéa à la pointe à la dorade. C’est une commande privée pour la réalisation d’une villa individuelle. La particularité de ce projet est la mise en place d’un espace d’extension pour la réalisation d’une chambre supplémentaire ou d’un bureau. Le terrain légèrement surélevé par rapport à la route offre une vue sur l’ensemble de la baie. L’orientation de la villa et de la chambre parentale permet aux occupants de profiter au mieux de ce cadre tout en offrant la jouissance du terrain et la mise en place d’une piscine.